Product Description
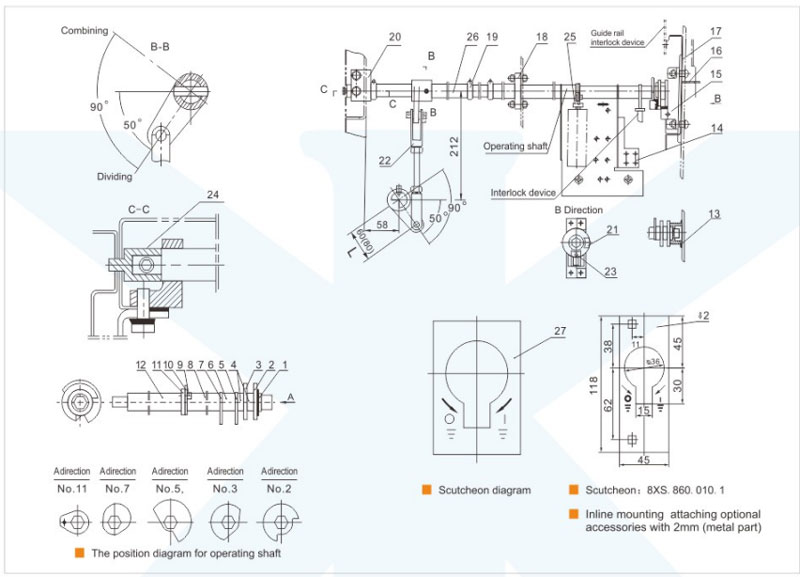
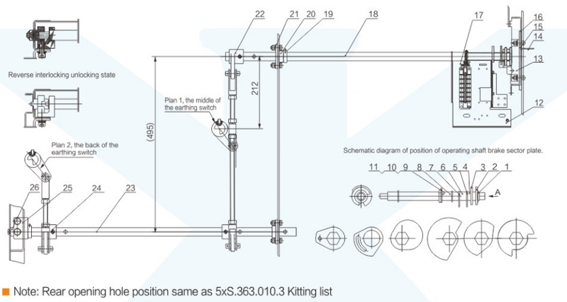
Earthing switch operation mechanism interlock device( For arm drive operation) 5XS.363.010

Earthing switch operation mechanism interlock device(For arm drive operation) 5XS.363.010

Note: 1. No.22 has two sizes. Normal center distance is 60. If you want to order the center distance of 80, please refer to page 16 and specify when ordering.
2. If need emergency release function, No.24(lock sleeve) should change to 8XS.211.059. 15/HK.
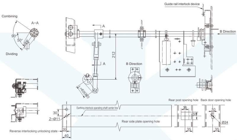
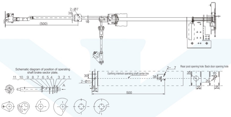
Earthing switch operation mechanism interlock device( For arm drive operation) 5XS.363.010.1
(With backdoor reverse interlock structure, cabinet precision requirements are higher)

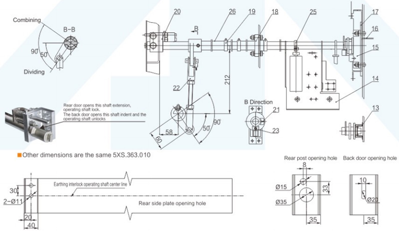
Earthing switch operation mechanism interlock device( For arm drive operation) 5XS.363.010.2
Reverse interlocking structure of back door, hole at rear of switchgear has been adjusted (as shown in the figure), reliable operation.

Note: the electric operation structure should cooperate with our electric earthing switch or consult our technical department.
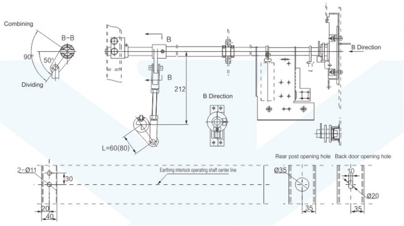
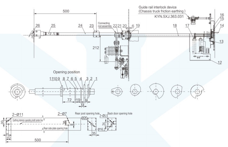
Earthing switch operation mechanism interlock device(For arm drive operation) 5XS.363.010.3
Backdoor standby interlocking structure (recommended), direct replacement for (5XS 363.010) reliable operation and easy nsallation.


Earthing switch operation mechanism interlock device(For arm drive operation) 5XS.363.010.3

Earthing switch operation mechanism interlock device(For arm drive operation)Split type KYN.5XJ.363.010.3/FT
Split type structure:Note: the distance between upper and bottom shaft can be adjusted according to customer’s requirements.
Piease inform the installation method of earthing switch when ordering

Earthing switch operation mechanism interlock device(For arm drive operation)Split type K YN.5XJ363.010.3/FTKitting list

Earthing switch operation mechanism interlock device(For arm drive operation) KYN.5XS.363.010.4

Earthing switch operation mechanism interlock device(For arm drive operation) KYN.5XS.363.010.5

Earthing switch operation mechanism interlock device(For arm drive operation)Pulling plate type KYN.5XJ363.010.6
Recommended scheme: rear shaft flat steel structure note: only applicable to the scheme that the earthing switch loaded on the middle of cabinet(not at the back)

Earthing switch operation mechanism interlock device(For arm drive operation)Pulling plate type KYN.5XJ.363.010.6 Kitting list

Earthing switch operation mechanism interlock deviceElectric manual priority )Pulling plate type KYN.5XJ.363.010.6S
note: only applicable to the scheme that the earthing switch loaded on the middle of cabinet(not at the back)

Earthing switch operation mechanism interlock device( Electric manual priority)Pulling plate type KYN.5XJ363.010.6S Kitting list
