Single compression spring, dual-shaft design, simple and stable.
Mechanical interlock prevents misoperation
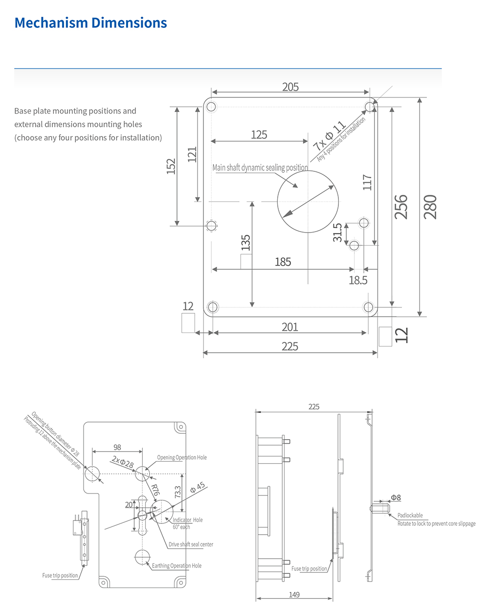
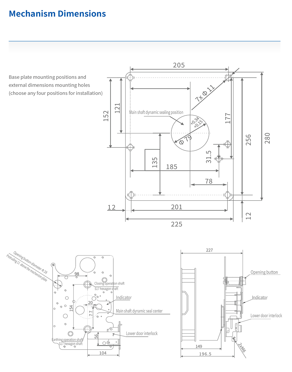
Compact, easy to install, strong adaptability
Mechanical endurance ≥5000 operations
The SPE spring operating mechanism is used with SF6 load switches and combination apparatus in AC metal-enclosed switchgear. The spring operating mechanism (commonly divided into Type C and Type F) is equipped with indoor high-voltage AC load switches with Type C mechanism, mainly for incoming line control units. Fuse-swtich with Type F mechanism is mainly for transformer protection units, also known as outgoing line control units.
SPE Spring Operating Mechanism uses compression spring over-travel control. Three positions: close, open, earth. Mechanical interlock between close and earth prevents misoperation. Compact size, easy installation.
Complies with GB/T3804-2017, GB/T16926-2009, and references GB/T11022-2020, GB/T3309-1989.
Model Composition and Meaning:

Main Technical Parameters:

Closing Operation
Install mechanism on switch. Insert handle into upper shaft (closing shaft), turn clockwise to charge spring, or use motor. Auto-closes after charging.
Opening (Fuse Trip)
Press open button (or simulate fuse trip) or energize opening coil. Spring releases, switch opens, circuit disconnects.
Earthing Operation
Earthing Close:
Insert handle into lower shaft (earthing shaft), turn clockwise. Earthing circuit closes.
Earthing Open:
Insert handle into lower shaft, turn counterclockwise. Earthing circuit opens. Mechanical interlock between closing and earthing. In open position, only one operation possible; the other hole is blocked.



